Ersatzneubau Schulhaus Zentrum
Diessenhofen, Schweiz
<
>
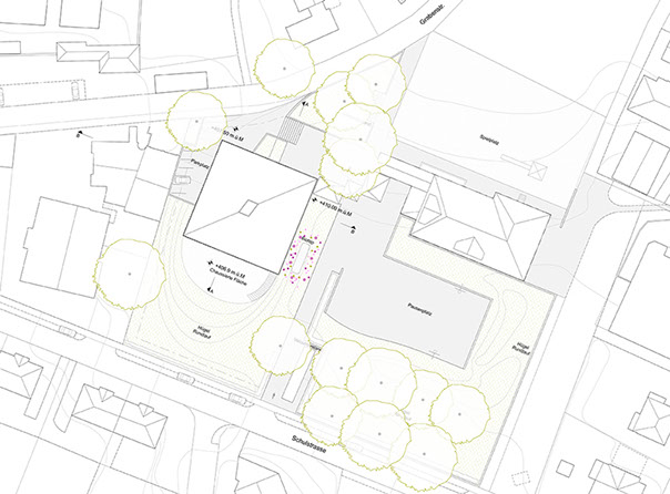
Die Grundrissform des Neubaus wird orthogonal zum Bestand und zu den Nachbargebäuden ausgerichtet, unter Berücksichtigung der zu erhaltenden Bäume und der Integration in die bestehende stätebaulische Komposition. Um die qualitativ hochwertigen Aussenräume der Schulanlage zu prägen, wird ein kompaktes Volumen für den Neubau konzipiert.
Die Garderoben werden linear im Perimeter des Gemeinschafts- und Erschliessungsbereiche integriert. Somit wird ein offener fliessender Raum geschafft, in welchem die Integration und Sozialisierung der Schüler gefördert wird.
Ein durchgehender Luftraum, vom Dach bis ins UG, bestreut diese Gemeinschaftszonen mit Zenitallicht und ermöglicht gleichzeitig eine geschossübergreifende Sichtverbindung.
Die Dach- und Fassadenverkleidung wird einheitlich mit einer Metallverkleidung aus Aluminium ausgebildet, in der sich Himmel und Natur diffus spiegeln. Die leichte Metallfassade schwebt darüber.
Projects
Research
Publications
Ersatzneubau Schulhaus Zentrum
Diessenhofen, Schweiz