Glitch Society
AWARDED
ARQUIA Foundation 2011
<
>
Life is the result of millions of years of evolution based on mutation. Mutation is simply a copy error. All living beings are the result of a long chain of accumulation of errors. Mutation is good for the species because it allows them to evolve.
The human being is subject to another replication system: memes. Information units that use memory and human cultural products to reproduce themselves. All our beliefs, social practices and artistic creations reside in our minds reproducing themselves over and over again.
In computers, the error used in an intelligent way, adds a new dimension. Traditionally, computers are cold and exact, but in reality, computers produce a lot of errors.
Celebrating those mistakes with emotion is the basis of Glitch. Glitch does not look like traditional art. Glitch society is closer to Dada, where the object is found randomly taking advantage of it. Glitch is appropriation. Glitch does not ask for permission to reproduce nor respect copyrights. Glitch society is a digitalization of behaviour (0) and people (1). There is no desire to represent reality.
The society in general wants to be serious, transcendent and transmit important messages. Glitch society, in contrast, is frivolous and stirs emotions. Glitch society requires no preparation. It is instantaneous. The society is an intrinsic part of creation. Creation is error and error is creation. Glitch society destroys all the traditional metaphors of social industry. Glitch society allows thinking in a free form. Error is freedom. Glitch society makes us think about the weakness of society itself. Society is a programming code and codes are a continuous source of errors. Glitch society does not understand formats nor resolutions.
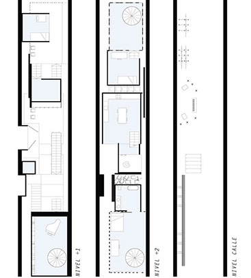
The passage is seen as a neutral space, isolated from any possibility of horizontal growth. We propose a strategy to break this barrier. The integration of a foreign element in a new location is solved through an extension of what already exists.
The proposed access is through the adjacent buildings. Existing homes are extended in order to provide an alternative economy to maintain the existing family structure. Immaterial exchange can also happen sharing experiences in between the new inhabitants.
A blind person or an Erasmus student for example can benefit from a life in community creating new bows of union that had never existed before.
The entrances are at the same level sharing to a negotiated common space. Oblique and horizontals connections, overlaps, interaction on volumes, intersections and approaches are the actions that make possible this space.
Projects
Research
Publications
Glitch Society
AWARDED
ARQUIA Foundation 2011